
咨詢熱線
0537-3657638
服務熱線
15376565688
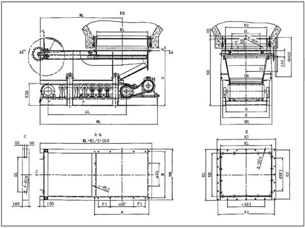
無撒料帶式(甲帶)給料機在下部設置了清除物料的裝置,避免了給料過程中機器周圍掉落物料、回程帶掉落物料的結構方式。無撒料帶式(甲帶)給料機在撒落物料的結構的給料機下部設置了集輸料斗、集輸料板,解決了給料機撒落物料堆積而造成的停機停產的現實問題。無撒料帶式(甲帶)給料機具有維修方便、性能穩(wěn)定等特點。
無撒料帶式(甲帶)給料機在下部設置了清除物料的裝置
1、運行平穩(wěn)可靠;
2、設備故障率低;
3、維護量小且維護方便;
4、噪音小且使用壽命長。
適用于對環(huán)境要求嚴格的場所,特別是裝車站、洗煤廠、港口碼頭等地。
1、通過在給料機的下部設置清料裝置,避免了給料過程中機身周圍落料、回程帶落料的結構方式;
2、在有撒落料結構的給料機下部設置集輸料斗、集輸料板,對給料機的撒落料、回程落料進行收集清理,使撒落料、回程落料得到了有效利用;
3、解決了回落料堆積凝結,造成停機停產的現實問題,減少了資源浪費及環(huán)境污染。
點擊下載全部文件:https://pan.baidu.com/s/1UtAgJmugPhu2H9fNNJ1jHQ